A problem with your internet connection has been detected.
We'll reconnect you as soon as we can.
Connecting to server...
You are advised to download and read the legal documentation prior to bidding.
Log in to view legal documentsYou are advised to download and read the legal documentation prior to bidding.
Log in to view legal documentsSituated on Warnford Crescent, close to the amenities available in Havant Town Centre and travelling facilities including Bedhampton and Havant Train Stations. Staunton Country Park is also nearby.
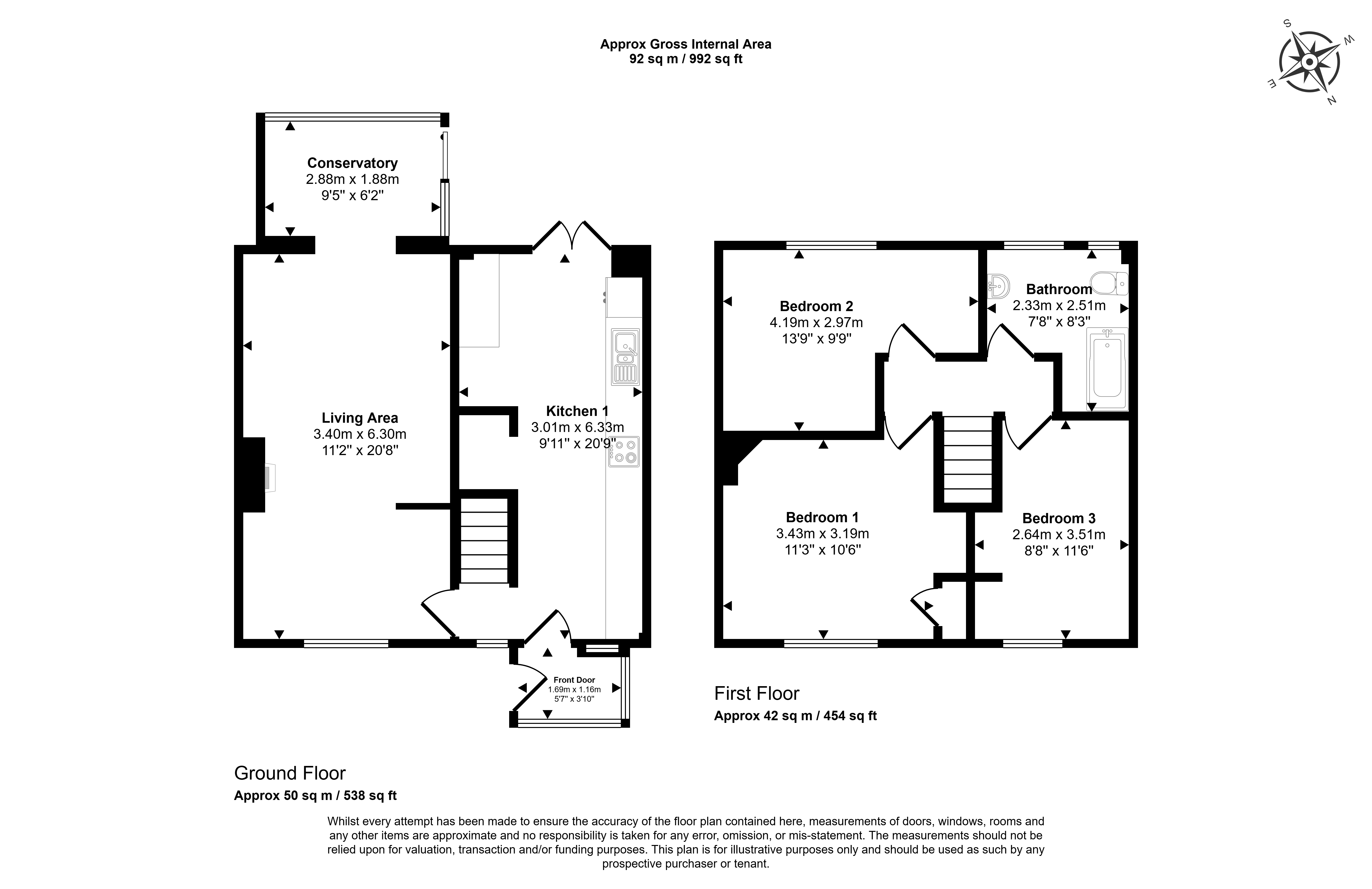
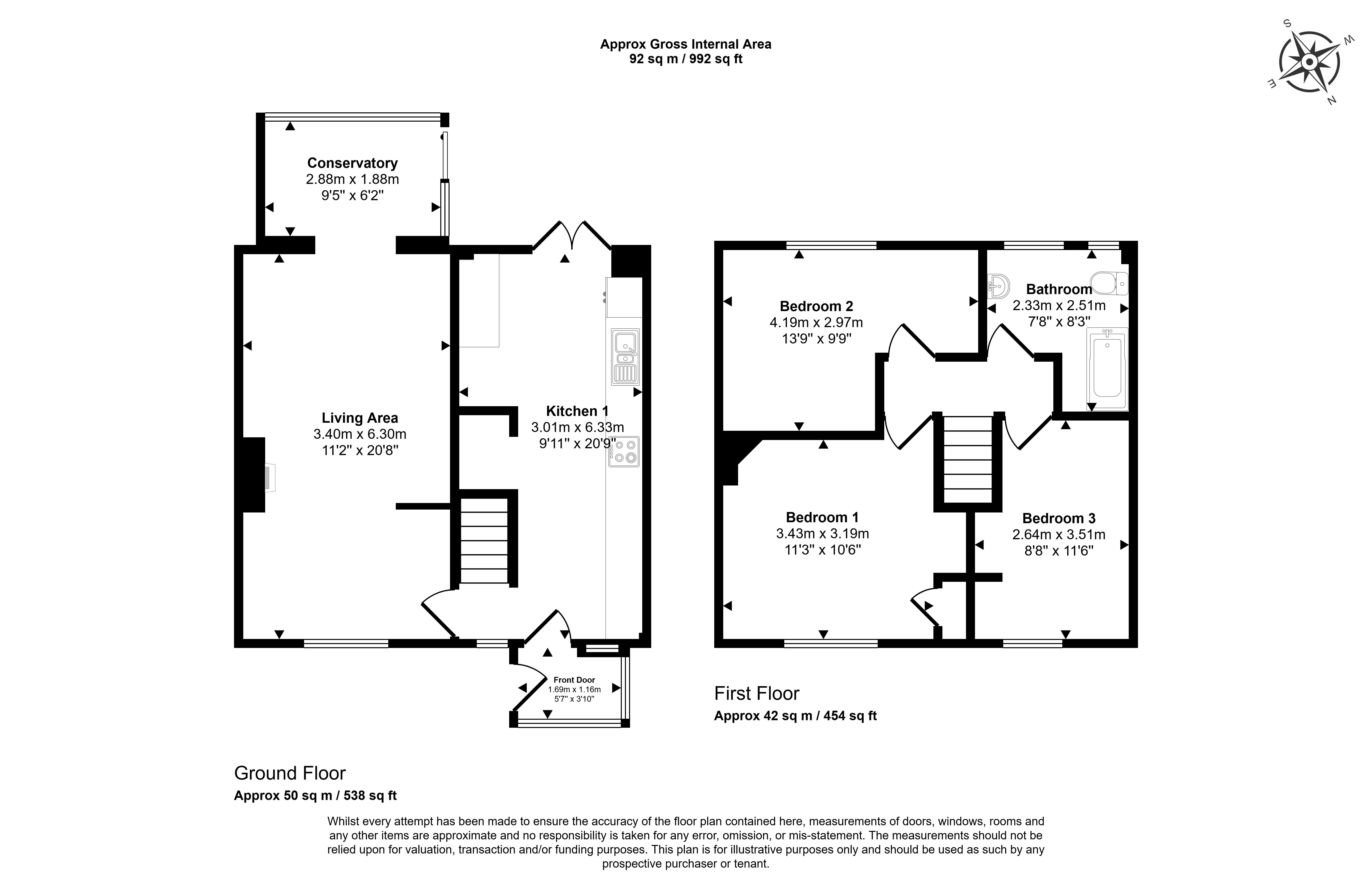
An End of Terrace House requiring modernisation on a Good Size Corner Plot with accommodation arranged on Two Floors comprising:
First Floor
• Bedroom (One)
• Bedroom (Two)
• Bedroom (Three)
• Shower Room/WC
Ground Floor
• Entrance Porch
• Living Room
• Kitchen
• Conservatory
Garden at Rear
Vacant Possession
D
A
Please wait, placing your bid...
Please wait, accepting the invitation...
When the auction is open, you can place bids in line with the pre-determined bid increment levels using the bid increase (+) and bid decrease (–) buttons provided.
Every time you place a bid you will be asked to confirm your bid before submitting it, and you will be clearly shown on the screen whether your bid was successful.
A full list of all bids placed is displayed in the bid history table.
You are not restricted to placing a bid at the minimum bid amount, but can instead increase your bid and place a maximum (proxy) bid in the system. By setting a maximum bid, the system will automatically bid on your behalf to maintain your position as the highest bidder, up to your maximum bid amount. If you are outbid, you will be notified via email so you can opt to increase your bid if you so choose. You also have the option to decrease your proxy bid.
If two or more users place identical bids, the bid that was placed first takes precedence, and this includes proxy bids.
Virtually every lot is sold subject to a reserve price (the minimum price that the auctioneer is authorised to sell for). When you submit a maximum bid, the actual bid placed by the system will depend on whether the reserve price has been met, as defined below.
If your maximum bid is below the reserve price
If your maximum bid is at or above the reserve price
NB : Your maximum bid is kept completely confidential – it's presence or amount are not disclosed to the auctioneer, vendor or any other bidder.
Lots will close sequentially in lot number order, with each lot scheduled to close 2 minutes after it's preceding lot. However, these times are subject to change due to the following reasons:
Withdrawn, Postponed and Sold Prior Lots
If a lot is withdrawn, postponed or sold prior before the bidding has started, the system will automatically bring forward the scheduled end times of all succeeding lots to maintain a 2 minute gap between lots closing.
Bidding Extension Window
If a bid is placed within the final 25 seconds of the auction's scheduled end time, the auction will be extended by an additional 25 seconds – known as the 'bidding extension window'.
If a bid is placed in the 'bidding extension window', the countdown clock will immediately reset to 25 seconds again, and the auction will only finish when an entire 25 second bidding extension window passes without any further bids being placed, i.e. 25 seconds of 'bidding silence'.
Changes to the Scheduled End Dates
When an extension window is in progress, the bidding software may push back the scheduled end times of subsequent lots to ensure that lots close consecutively and with a minimum 1 minute duration between each one. When this happens, an advisory note will be displayed on the affected lot(s).
NB : Do not leave placing your bid to the last few seconds. It gives you no advantage, you risk your bid not being received by the server in time and you could lose the lot to another bidder.
NB: Please note that the way the bidding works may vary slightly from auctioneer to auctioneer. We strongly advise you to read the bidding guide for any auction you plan to bid on.
By setting a proxy bid, the system will automatically bid on your behalf to maintain your position as the highest bidder, up to your proxy bid amount. If you are outbid, you will be notified via email so you can opt to increase your bid if you so choose.
If two of more users place identical bids, the bid that was placed first takes precedence, and this includes proxy bids.
Another bidder placed an automatic proxy bid greater or equal to the bid you have just placed. You will need to bid again to stand a chance of winning.
Your browser became disconnected from the server, and despite several attempts it was unable to reconnect.
Please check your internet connection to ensure that you are still connected.
Additional Fees
Viewing property
Buying at auction
Guide price and Reserve price
Legal Documents
In order to bid for a lot, you must register to do so by 1pm the day before the auction. The simplest way to register to bid is as follows:
Click on a lot you want to bid on.
Click on the 'Log in / register to bid' button and then just follow the prompts.