Lot 106

18 Mounsey Road, Birkenhead, Merseyside, CH42 0HS

£82,000 Result
Lot 106
18 Mounsey Road, Birkenhead, Merseyside, CH42 0HS

Loading the bidding panel...

Legal documents

You are advised to download and read the legal documentation prior to bidding.

Log in to view legal documents

Legal documents

You are advised to download and read the legal documentation prior to bidding.

Log in to view legal documents

Freehold House Vacant Possession


Description

Six Week Completion or Earlier

Wirral Council

Situated off Willmer Road, close to the amenities available in Birkenhead Town Centre and travelling facilities including Birkenhead Central Train Station. Birkenhead Park is also nearby.

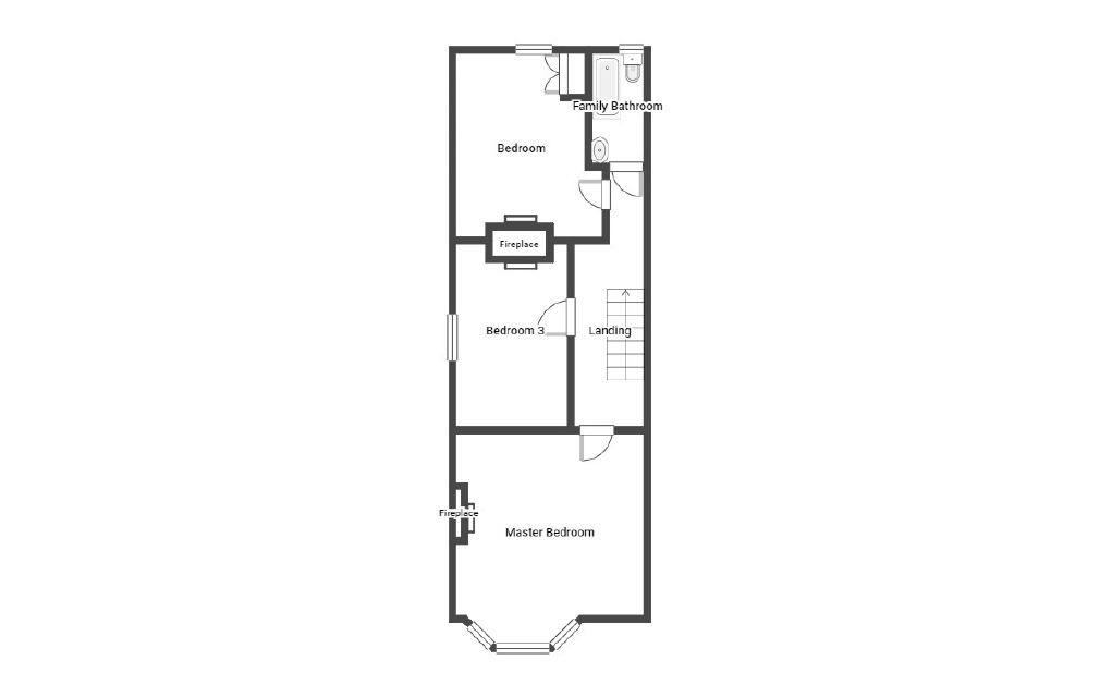
An End of Terrace House requiring modernisation with accommodation arranged on Two Floors comprising:

First Floor
• Bedroom (One)
• Bedroom (Two)
• Bedroom (Three)
• Bathroom/WC

Ground Floor
• Entrance Hall
• Living Room
• Dining Room
• Kitchen

Yard at Rear

Vacant Possession

EPC Rating: E

Inspection: By arrangement with the Auctioneers

Important Information

Each successful bidder will be required to pay the Auctioneers McHugh & Co., a non-refundable buyer's fee of £1,200 inclusive of VAT. Lots sold for less than £10,000 the buyer’s fee will be £300 inclusive of VAT. 
The seller may charge additional fees payable upon completion. If applicable, such fees are detailed within the special conditions of sale. Buyers are deemed to bid in full knowledge of this.
Each lot is sold in its actual condition and state of repair and the buyer shall be deemed to have surveyed and inspected the lot prior to the auction. For the avoidance of doubt, purchasers shall raise no objection or recourse to McHugh & Co as to the structure or condition of a property and its state of repair. McHugh & Co give no warranty or guarantee as to the structure, condition or issues of a property. This is in reference to (a) the state of the structure of any property or the working condition of any fixtures, fittings, heating systems, appliances or other items included in the sale of any property and (b) the type of the structure or whether such structure is adequate or property constructed. For purchasers requiring funding by mortgage or other means, they are advised to organise this in advance of the auction and shall raise no objection or recourse to McHugh & Co over whether a property is suitable for their lenders criteria.
The successful bidder is under a Binding contract as soon as the Auctioneer's electronic gavel falls on his/her Bid. Upon a successful bid, the bidder’s card will be automatically debited for the bidder security amount, which is considered as a whole or contribution towards the deposit. The bidder security amount is non-refundable upon a successful bid. The bidder/purchaser will be required to pay the balance for the 10% deposit of the purchase price subject to a minimum deposit of £5,000 whichever is greater and buyers fee within 24 hours of the auction date. The completion date is set usually within 20 working days of the auction date. The timeframe for completion on individual lots may vary, please read the special conditions of sale within the legal documentation.
Guides prices are provided as an indication of each seller's minimum expectation. They are not necessarily figures which a property will sell for and may change at any time prior to the auction. Each property will be offered subject to a Reserve (a figure below which the Auctioneer cannot sell the property during the auction) which we expect will be set within the Guide Range or no more than 10% above a single figure Guide. Guide prices will be continually updated on our website up until the day of the auction.
Each purchaser shall be deemed to have read the legal documents or provided the legal documents to their legal representatives for advice on the lot they are intending on purchasing which has been made available on our website. The purchaser shall be deemed to have raised any enquiries with the vendors solicitors that a prudent purchaser would make. The purchaser is deemed to have read the special conditions of sale associated with the sale of the lot and bid in full knowledge of this and the legal documents prior to bidding.

Other lots in the sale